23
墨西哥Casa Z海滨别墅设计赏析:Zozaya Arqui
项目名称:Z House
项目位置:墨西哥芝华塔内欧
项目类型:住宅空间/海滨别墅
建筑面积:470㎡
完成时间:2018
设计公司:Zozaya Arquitectos
摄影:Rafael Gamo
文本:archdaily
Z住宅位于芝华塔内欧最高的山上,在一个500㎡的梯形地块上。土地的表面是不规则的,主要入口位于地形较高的位置。
该项目的主要概念是在满足丰富社交空间的前提下创造最小的房屋,其空间应当使得使用者获得远景的视野,并且使其得以享受当地的良好气候。我们提议采用包含两个错开体量的三个水平面,从而顺应并充分利用当地地形条件。
房屋的中部空间包含了两个并列的长方形体量,其由25厘米厚的墙体构成。上部的长方形体量承当主卧的功能,其空间为使用者构造出了良好的视野,并且利用海拔高度创造了一种飞行在空中的感觉。街道立面使用了双层表皮,其由垂直的柱子组成,既保证了房间的隐私性,又保护房间免受烈日侵袭。
房屋的中间层承担了主要的社交功能,从这一层,你可以倾斜向下到达露台和泳池。无边际的泳池呼应了无边际的远景,水面之上的海洋成功地传达了流动的感受。
建筑的部件使用了永久性的材料,例如混凝土,钢,当地的石灰石以及柱子。混用的材质以及当地的建造技艺使得该房屋有了现代感和热带特点,成功地契合了当地环境,与自然和谐共处。
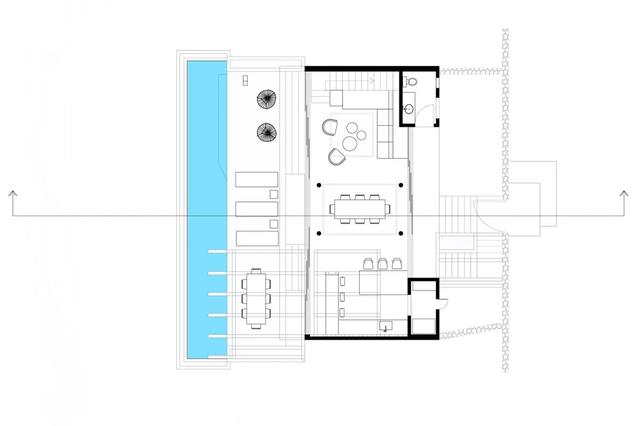
∇ 平面图
∇ 剖面图
来源:Houzz设计私生活
版权声明:【除原创作品外,本平台所使用的文章、图片、视頻及音乐属于原权利人所有,因客观原因,或会存在不当使用的情况,如,部分文章或文章部分引用内容未能及时与原作者取得联系,或作者名称及原始出处标注错误等情况,非恶意侵犯原权利人相关权益,敬请相关权利人谅解并与我们联系及时处理,共同维护良好的网络创作环境】